Du bliver nu sendt videre til vores søsterside: Norliv.dk

Vent venligst.. 2 sekunder
|
HAFJELL TINDEGRENDA - Danebu 115 modell |
|||
|
Liseter, 2636 Øyer |
|||
| Beliggenhed: | På fjeldet | Soverum: | 4 |
| Boligtype: | Hytte | Boligareal: | 115 m² |
| Byggeår: | Antal P pladser: | 2 | |
Beliggenhed:
Tindegrenda ligger fint på Hafjelltoppen/Lisetra. For den som er godt kendt ligger Tindegrenda mellem Mosetertoppen og Lisetra. Dette er et meget fint område med god udsigt og gode solforhold.
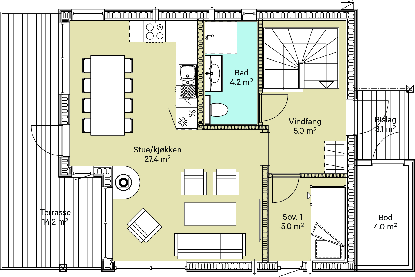
Danebu 115 med underetasje er en romslig hytte med tre soverom, to bad, TV-stue, stue og kjøkken i
åpen løsning, sportsbod. Utgang fra stua til solrik veranda.
Danebu 115 har moderne fargevalg og store vindusflater gir god utsikt mot Fakkelmannen og
fjellheimen i vest. Svært gode solforhold.
Vi har kun to av denne hyttemodellen i Tindegrenda i Hafjell.
Hyttene bygges på Tun 7 tomt 1 og 2.
Generelt:
![]() |
![]() |
| Læs mere om TindeHytter i Hafjell her | |
![]() |
|
|
Ønsker du at høre mere eller book en fremvisning, kontakt Tinde Hytter |
|
![]() |
|
|
|
Lars Møller |
|
|
Mobil + 45 2143 8587 |
| Mail : Lars@nhu.dk | |