Du bliver nu sendt videre til vores søsterside: Norliv.dk Vent venligst.. 2 sekunder
10 Resultater på din søgning | x Nulstil søgning
Hyggelige men enkle rom med enkle eller ferdig oppredde senger. Servant med varmt og kaldt vann. Dusj og toalett og badstue i gangen. Liten sittegruppe i hvert rom. Ingen rom er like.Disse rommene ligger i...
Rett ved skiløypene, 1 soverom, åpen kjøkkenløsning, stue med sovesofa, bad, sauna, terrasse, skibod, parkering,Stue med peisovn, TV, åpen kjøkkenløsning, spiseplass, bad, sauna, fjellutsikt, nære s...
Rett ved skiløypene, 1 soverom for 4 personer, kjøkken, spisekrok, stue med sovesofa, bad, sauna, veranda , skibod, parkeringFerieleilighet mes stue med peis og sovesofa, kjøkken, spiseplass, bad, sauna...
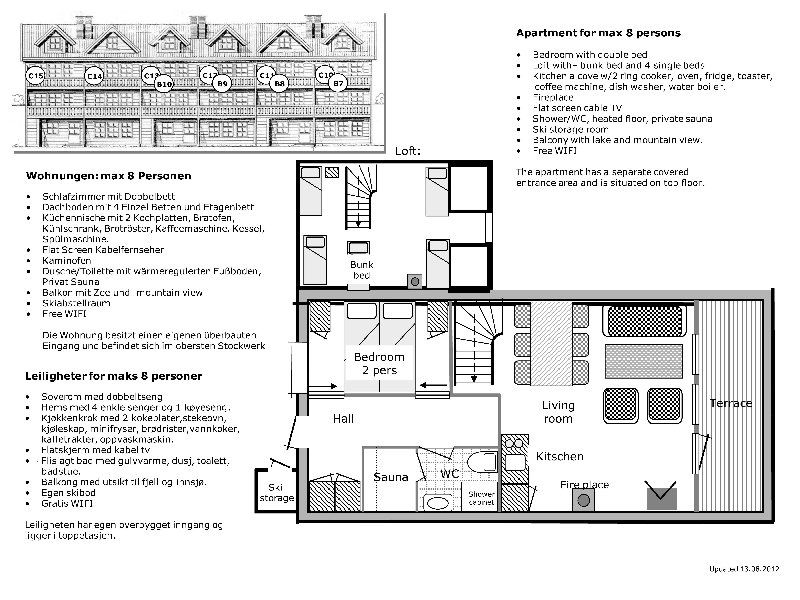
Rett ved skiløypene, 1 soverom og stor hems med 4 senger + sovesofa, kjøkken, spisekrok, stue, bad, sauna, veranda , skibod, parkeringFerieleilighet for maks 8 personer ,stue med peis, fjellutsikt, TV WIF...
Rett ved skiløyper, 2 adskilte soveplasser med 5 senger, stue med kjøkken, peisovn, spiseplass, bad og gratis tilgang til badstue .Hyggelig fjellhytte med 1 soverom og hems for 1-5 personer med: Hytten e...
Ferdig oppredd dobbeltseng eller 2 enkle senger med 2 hodeputer, liten sittegruppe, TV, kaffe/tekoker, parkettgulv, dusj/toalett.Trivelige dobbeltrom eller twin rom, 2 hodeputer, liten sittegruppe TV, parke...
Små familierom med ferdig oppredd dobbeltseng med sovesofa eller køyeseng, liten sittegruppe, TV, kaffe/tekoker, parkett eller teppegulv,Familierom med oppredning enten på sovesofa eller i køyeseng for ...
Små familierom med ferdig oppredd dobbeltseng med sovesofa eller køyeseng, liten sittegruppe, TV, kaffe/tekoker, parkett eller teppegulv,Trivelige små familierom med oppredning på sofesofa, liten sitt...
Enkle rom med 1 seng, nattbord, en stol og et lite bord. Vaskeservant med varmt og kaldt vann. Felles dusj, toalett og badstue i gangen. Sengen er redd opp og det er håndklær inkludert.Disse rommene ligge...
Ferdig oppredd seng med 2 hodeputer, liten sittegruppe, TV, kaffe/tekoker, parkettgulv, dusj/toalett.Trivelige enkeltrom, 2 hodeputer, liten sittegruppe TV, parkettgulv, eget bad. Romstørrelse: 12- 15m...